万搏官方网站-万搏(中国)

ELEVATOR DOOR SYSTEM电梯门系统

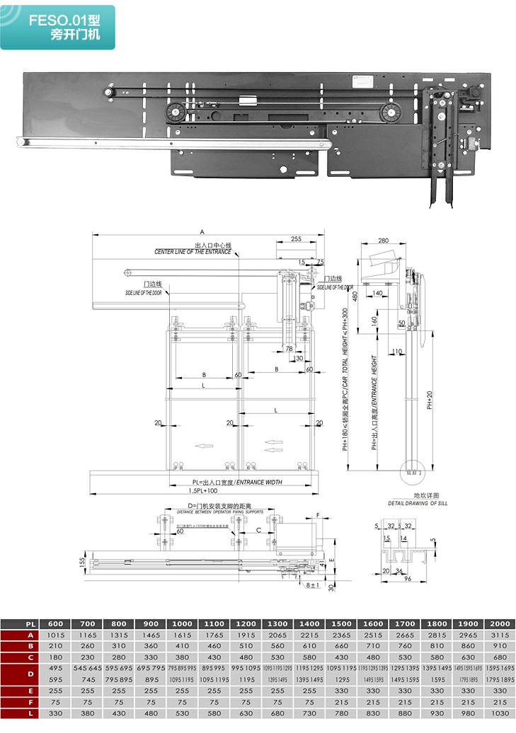
FESO.01型旁开门机